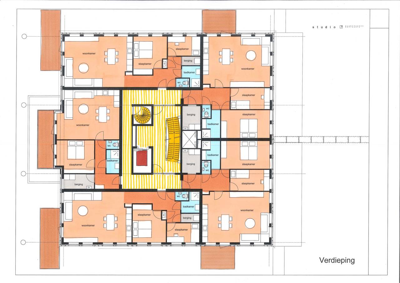
Goudsbloemvallei herbestemmen naar wonen

Een bestaand kantoorgebouw aan de Goudsbloemvallei ligt samen met een aantal andere kantoorvilla’s aan de rand van een woonwijk in Den Bosch. In deze situatie is een transformatie van deze kantoorgebouwen naar woongebouwen bijna vanzelfsprekend. De tot woongebouwen getransformeerde kantoren vormen samen een beëindiging van de woonwijk. Studio Y heeft deze transformatie voorgesteld en voor één van deze kantoorvilla’s en plan tot herbestemmen gemaakt.

Opdrachtgever

Syntrus Achmea Real Estate & Finance

Locatie

's Hertogenbosch

Wil je meer weten over dit project?

Neem contact met ons op

Je krijgt zo snel mogelijk een antwoord terug.

We gebruiken je informatie om contact met je op te nemen. Bekijk onze Privacyverklaring.